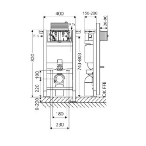
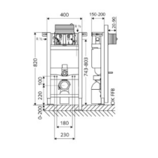
1 kép Schell MONTUS C 820 c keret nélküli WC szerelőelem alacsony kivitel
68 499 Ft-tól
ÁRFIGYELÉS
Gyártói cikkszám: 49-0-030600099

